Cerca l'immobile giusto per te

Inserisci rif. immobile

Oppure scegli il tipo di contratto

Tipo di proprietà
Provincia
Superficie
Numero di locali
Fascia di prezzo
Agenzia
Caratteristiche
1143 Immobili trovati

APPARTAMENTO AL PRIMO PIANO - MILANO MARITTIMA


449.000,00 € IM-12902

Cervia - Due Giugno 25

3 locali
ca. 95 m²
2 bagni
1° piano
FACCIATA
SALOTTO
SALOTTO
SALOTTO
SALOTTO
CUCINA
CUCINA
CUCINA
TERRAZZO GRANDE
TERRAZZO GRANDE
TERRAZZO GRANDE
BAGNO
BAGNO
BAGNO
DISIMPEGNO
CAMERA DA LETTO
CAMERA DA LETTO
BAGNO DI SERVIZIO
SECONDA CAMERA
SECONDA CAMERA
SECONDA CAMERA
TERRAZZO PICCOLO
GARAGE/CANTINA
GARAGE/CANTINA
POSTO AUTO
POSTO AUTO
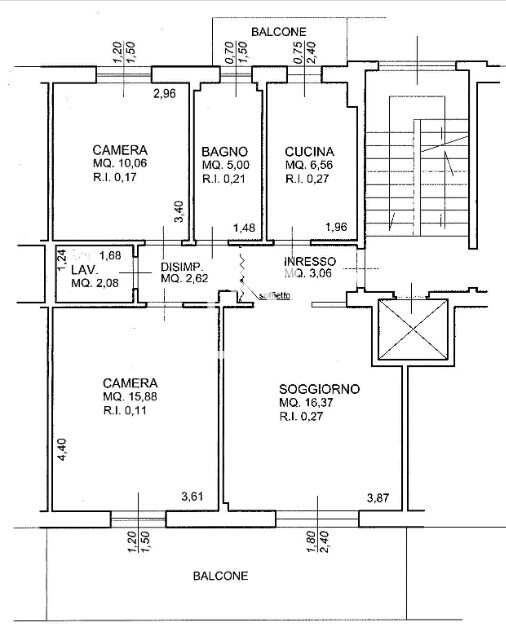
PLANIMETRIA
PLANIMETRIA
Descrizione dell'immobile

APPARTAMENRO AL PRIMO PIANO A 100 MT DAL MARE

Vieni a scoprire il tuo angolo di paradiso a soli 100 metri dal mare! Questo delizioso appartamento al primo piano, di circa 85 mq commerciali, ti offre un'oasi di tranquillità e comfort.

Gli spazi sono pensati per la tua felicità:

un accogliente salotto, una cucina, due camere matrimoniali, un bagno finestrato con box doccia e un bagno di servizio.

Ma la vera perla è il terrazzo enorme, uno spazio spettacolare che puoi trasformare nel tuo personale rifugio per goderti il pranzo e la cena con il profumo del mare.

In più, la proprietà include un posto auto e un garage/cantina, ideali per la tua comodità. Una casa perfetta per vivere appieno la bellezza della costa, con tutti i comfort a portata di mano.

L' appartamento gode di impianto di riscaldamento autonomo e aria condizionata. Nelle spese condominiali è compreso il consumo dell'acqua che viene suddiviso per millesimi.

Per info e visite contattare l'agente di riferimento Lucchi Simone al 349 4615202 oppure mandare una mail a s.lucchi@romagnacase.it e verrete ricontattati il prima possibile.

Anno di costruzione: 1980
Stato immobile: Ben tenuto
Scheda dati dettagliata
Codice immobile
IM-12902
Genere
Residenziale
Contratto
vendita
Tipologia
Appartamento
Città
Cervia
Cap
48015
Provincia
Ravenna
Via/Viale/piazza
Due Giugno
Numero civico
25
Zona
Milano Marittima
Piano
1
Superficie
ca. 95 m²
Locali
3
Camere da letto
2
Bagni
2
Cucina
Cucina abitabile
Garage
Si
Superficie balcone/terrazza
ca. 25 m²
Balcone
Si
Terrazza
Si
Prezzo
449.000,00 €
Permuta il tuo immobile
Come funziona la permuta immobiliare?
Agente immobiliare Simone Lucchi
Simone Lucchi

ROMAGNA CASE _ CERVIA MI.MA. viale alfredo oriani 14 48015 cervia
Richiedi informazioni