STANZA A FORLì - ZONA BERTINI
290,00 €/mese
Codice immobile:
IM-13753
Forlì - Bertini
161
1 locale
ca. 29 m²
2 bagni
1° piano
Forlì
- Stazione - Grandi Italiani
1 locale
ca. 29 m²
2 bagni
1° piano















Descrizione dell'immobile
FORLI' - ZONA BERTINI
Stanza per studenti o lavoratori.
No residenza - Solo contratti transitori
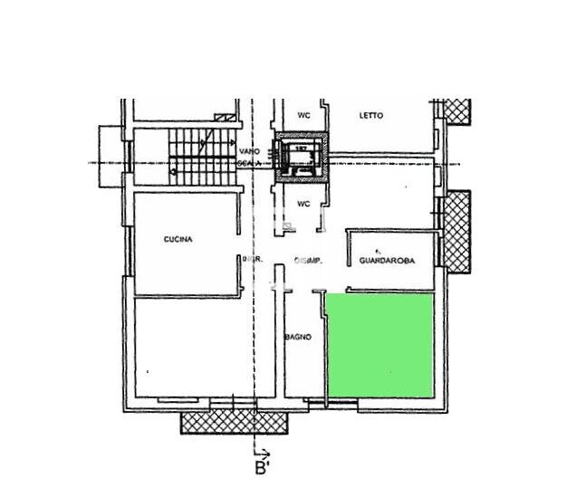
Affittasi ampia stanza in appartamento arredato al primo piano.
Uso condiviso con altri due utenti della zona pranzo con cucina e doppio servizio finestrato.
Completa l'unità il posto auto.
Spese stimate in euro 120,00 mensili comprensive di: acqua, luce, gas, spese condominiali, internet e tari.
Chiama per maggiori informazioni 3518432835.
Anno di costruzione:
Stato immobile: Buono / Abitabile
Scheda dati dettagliata
Codice immobile
IM-13753
Genere
Residenziale
Contratto
affitto
Tipologia
Appartamento
Certificazione energetica
Legge 90/2013
Città
Forlì
Cap
47121
Provincia
Forlì-Cesena
Via/Viale/piazza
Bertini
Numero civico
161
Zona
Stazione - Grandi Italiani
Piano
1
Superficie
ca. 29 m²
Locali
1
Camere da letto
1
Bagni
2
Garage
No
Balcone
No
Terrazza
No
Prezzo
290,00 €/mese
Permuta il tuo immobile
Come funziona la permuta immobiliare?
Agente immobiliare
Giada Milandri
ROMAGNA CASE _ FORLIMPOPOLI
Viale Matteotti, 16
47034
Forlimpopoli
Richiedi informazioni