Cerca l'immobile giusto per te

Inserisci rif. immobile

Oppure scegli il tipo di contratto

Tipo di proprietà
Provincia
Superficie
Numero di locali
Fascia di prezzo
Agenzia
Caratteristiche
1094 Immobili trovati

APPARTAMENTO CON MANSARDA E GARAGE - CANNUZZO


165.000,00 € IM-14208

Cervia - Via Ruggine 14/O

4 locali
ca. 90 m²
1 bagno
ZONA GIORNO
ZONA GIORNO
ZONA GIORNO
ZONA GIORNO
TERRAZZA
TERRAZZA
CAMERE
CAMERA MATRIMONIALE
CAMERA MATRIMONIALE
CAMERA MATRIMONIALE
TERRAZZA
TERRAZZA
CAMERA
CAMERA
CAMERA
BAGNO
BAGNO
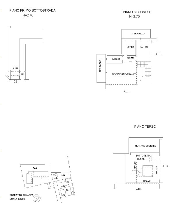
MANSARDA
MANSARDA
MANSARDA
MANSARDA
MANSARDA
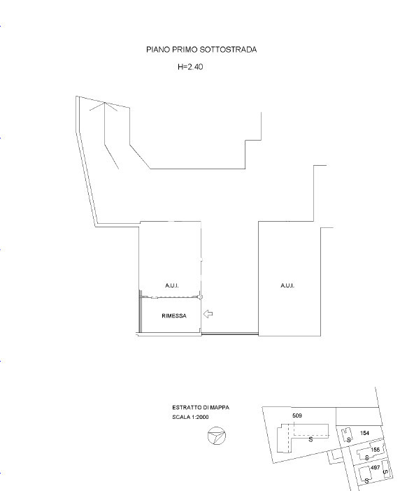
GARAGE
CANTINA
POSTO AUTO
FACCIATA
PLANIMETRIA
PLANIMETRIA
Offerta speciale
3D tour
Descrizione dell'immobile

CANNUZZO

Romagna Case propone in vendita appartamento trilocale con mansarda a Cannuzzo di Cervia, circondati dal verde e dalla quiete della campagna, pur essendo vicini a tutti i principali servizi.

L'appartamento, situato al secondo piano, è così composto: ingresso su zona giorno e cucina open space, bagno finestrato con doccia e due camere da letto, una matrimoniale e una singola.

Sia dalla zona giorno che dalle camere si accede a due ampi terrazzi, dove d'estate poter pranzare comodamente.

Al piano superiore troviamo la mansarda, in cui è stata ricavata un'ulteriore camera da letto.

Completa la soluzione, il garage, una cantinetta e un posto auto di proprietà.

Per qualsiasi informazione o per fissare una visita sul posto chiama Sara: 3662611752 - 05441672380 oppure manda una email a s.zoffoli@romagnacase.it e verrai ricontattato appena possibile.

Anno di costruzione: 2006
Stato immobile: Come nuovo
Scheda dati dettagliata
Codice immobile
IM-14208
Genere
Residenziale
Contratto
vendita
Tipologia
Appartamento
Certificazione energetica
Attestato di prestazione energetica (APE),
Città
Cervia
Cap
48015
Provincia
Ravenna
Via/Viale/piazza
Via Ruggine
Numero civico
14/O
Zona
Castiglione, Villa Inferno, Montaletto
Superficie
ca. 90 m²
Locali
4
Camere da letto
2
Bagni
1
Cucina
Cucina aperta
Garage
Si
Superficie balcone/terrazza
ca. 21 m²
Balcone
Si
Terrazza
Si
Prezzo
165.000,00 €
Permuta il tuo immobile
Come funziona la permuta immobiliare?
Agente immobiliare Sara Zoffoli
Sara Zoffoli

ROMAGNA CASE _ CERVIA MI.MA. Viale Oriani 14 48015 Cervia
Richiedi informazioni