Cerca l'immobile giusto per te

Inserisci rif. immobile

Oppure scegli il tipo di contratto

Tipo di proprietà
Provincia
Superficie
Numero di locali
Fascia di prezzo
Agenzia
Caratteristiche
1145 Immobili trovati

LOCALE COMMERCIALE A 145 METRI DAL MARE CON POSSIBILITÀ DI TRASFORMARLO IN ABITATIVO - GATTEO MARE


299.000,00 € IM-14235

Gatteo - Firenze 20

ca. 322 m²
piano terra
3D tour
Descrizione dell'immobile

Locale commerciale in vendita a Gatteo Mare, situato nel cuore del centro, a soli 145 metri dalla splendida spiaggia. Questo immobile storico, attivo da oltre 30 anni, offre un'opportunità unica grazie alla sua ampia cucina e una cantina ideale per lo stoccaggio di prodotti alimentari.

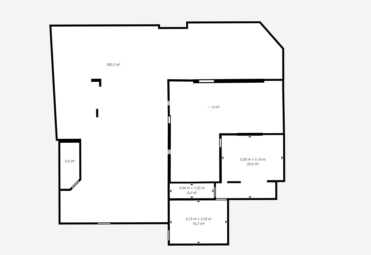
L'edificio, costruito nel 1985, si presenta in buone condizioni tuttavia richiede alcuni interventi di ammodernamento. Si estende interamente al piano terra e vanta una superficie di circa 313 m², con una corte esterna di circa 85 m² adatta come parcheggio per veicoli. Il comune permette il cambio di destinazione d'uso in abitativo, consentendo la realizzazione di una unità abitativa ogni 40 m², lasciando ampia libertà di sviluppo e personalizzazione, a seconda delle proprie esigenze.

Ideale per avviare una nuova attività o investire nel mercato immobiliare con la possibilità di conversione in appartamenti abitativi, questo locale è una proposta imperdibile per chi cerca una proprietà nel vivace e ricercato centro di Gatteo Mare.

Per maggiori informazioni e visite sul posto contatta Emanuele al 333 8238882 oppure manda un'e-mail a e.briganti@romagnacase.it e verrai ricontatto appena possibile.

Anno di costruzione: 1985
Stato immobile: Da ristrutturare
Scheda dati dettagliata
Codice immobile
IM-14235
Genere
Commerciale
Contratto
vendita
Tipologia
Negozio o Locale commerciale
Città
Gatteo
Cap
47043
Provincia
Forlì-Cesena
Via/Viale/piazza
Firenze
Numero civico
20
Zona
Gatteo A Mare
Piano
0
Superficie
ca. 322 m²
Garage
No
Balcone
No
Terrazza
No
Prezzo
299.000,00 €
Planimetria
Permuta il tuo immobile
Come funziona la permuta immobiliare?
Agente immobiliare Emanuele Briganti
Emanuele Briganti

ROMAGNA CASE _ BELLARIA IGEA MARINA Piazza Giacomo Matteotti 10 47814 Bellaria Igea Marina
Richiedi informazioni