Cerca l'immobile giusto per te

Inserisci rif. immobile

Oppure scegli il tipo di contratto

Tipo di proprietà
Provincia
Superficie
Numero di locali
Fascia di prezzo
Agenzia
Caratteristiche
1143 Immobili trovati

PRENOTATO - TRILOCALE COMPLETAMENTE RISTRUTTURATO


179.000,00 € IM-14520

Forlì - Via Volturno 18

3 locali
ca. 91 m²
1 bagno
3° piano
Soggiorno
Soggiorno
Soggiorno
Soggiorno
Soggiorno
Soggiorno
Cucina
Cucina
Cucina
Cucina
Bagno
Bagno
Bagno
Corridoio
Corridoio
Camera da letto
Camera da letto
Camera da letto
Camera da letto
Cabina armadio
Camera da letto
Camera da letto
Camera da letto
Camera da letto
Camera da letto
In trattativa
3D tour
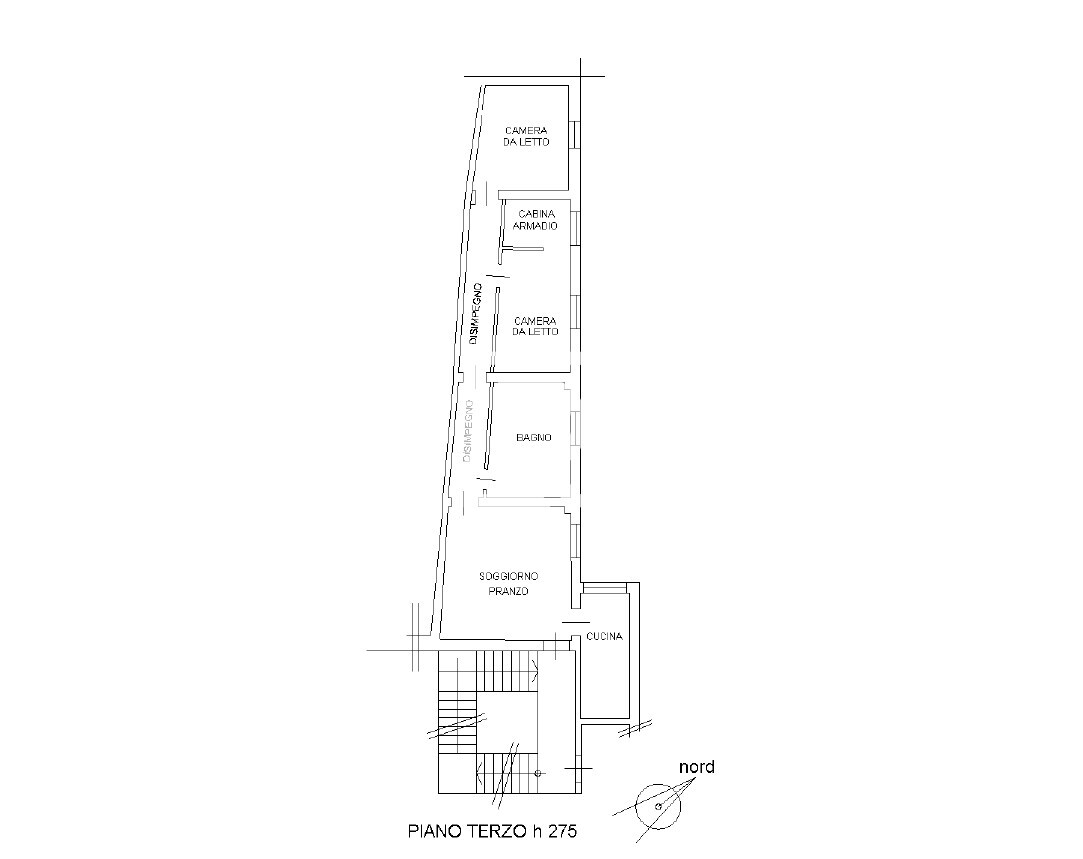
Descrizione dell'immobile

FORLI’ – CENTRO STORICO

RomagnaCase è lieta di proporre in vendita un elegante trilocale completamente ristrutturato in chiave moderna, situato nel cuore del centro storico di Forlì.

L’immobile, posto al terzo piano di un prestigioso palazzo storico, si apre su un accogliente ingresso che conduce al luminoso soggiorno con angolo cottura finestrato. Da qui si accede a un disimpegno che introduce la zona notte, composta da due camere da letto, una delle quali dotata di cabina armadio, e da un bagno finestrato con box doccia.

La recente ristrutturazione integrale ha valorizzato ogni dettaglio con finiture di pregio e uno stile contemporaneo, creando un perfetto equilibrio tra fascino storico e comfort moderno.

Una soluzione ideale sia per investitori, sia per chi desidera vivere nel cuore pulsante di Forlì, a due passi da tutti i servizi e dalle bellezze del centro.

Non perdere l’occasione di scoprire questo splendido appartamento!

***TOTALMENTE RISTRUTTURATO***

***CONTESTO SIGNORILE***

***OTTIMO INVESTIMENTO***

Per fissare una visita sul posto o per ulteriori informazioni chiama Riccardo: 3295780577 o 0543.1947240 oppure manda una e-mail a r.buseghin@romagnacase.it e verrai ricontattato non appena possibile.

Anno di costruzione: 1800
Stato immobile: Ottimo / Ristrutturato
Scheda dati dettagliata
Codice immobile
IM-14520
Genere
Residenziale
Contratto
vendita
Tipologia
Appartamento
Certificazione energetica
Attestato di prestazione energetica (APE), F
Città
Forlì
Cap
47121
Provincia
Forlì-Cesena
Via/Viale/piazza
Via Volturno
Numero civico
18
Zona
Centro Storico
Piano
3
Superficie
ca. 91 m²
Locali
3
Camere da letto
2
Bagni
1
Cucina
Angolo cottura
Garage
No
Balcone
No
Terrazza
No
Prezzo
179.000,00 €
Planimetria
Planimetria
Permuta il tuo immobile
Come funziona la permuta immobiliare?
Agente immobiliare Riccardo Buseghin
Riccardo Buseghin

Romagnacase Corso della Repubblica 122 47121 Forlì
Richiedi informazioni