Cerca l'immobile giusto per te

Inserisci rif. immobile

Oppure scegli il tipo di contratto

Tipo di proprietà
Provincia
Superficie
Numero di locali
Fascia di prezzo
Agenzia
Caratteristiche
1066 Immobili trovati

VILLA CON PARCO PRIVATO - GATTEO


349.000,00 € IM-15033

Gatteo - STAGGI 7

10 locali
ca. 404 m²
1 bagno
1° piano
A-15
A-04
staggi
A-05
staggi 3
A-06
staggi 2
staggi1
A-14
A-20
Descrizione dell'immobile

Residenza con parco privato e servizi – Gatteo

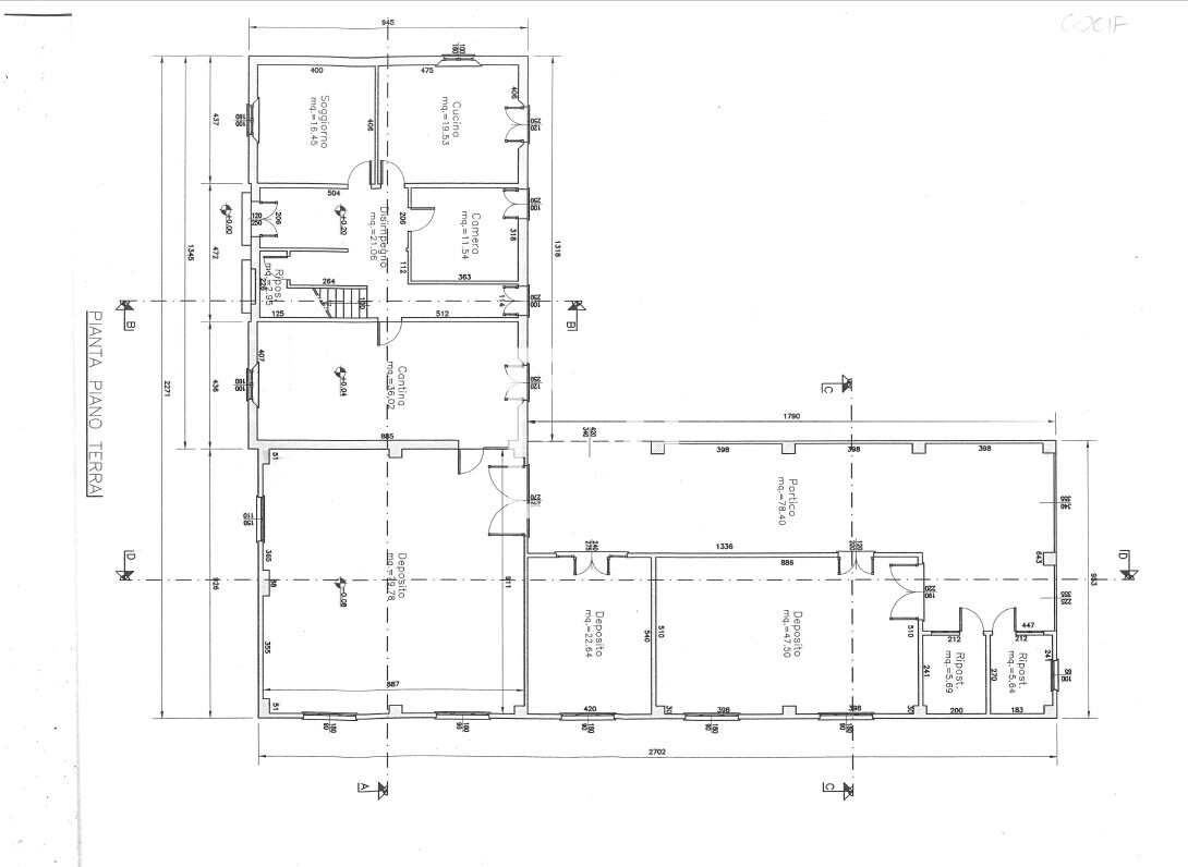
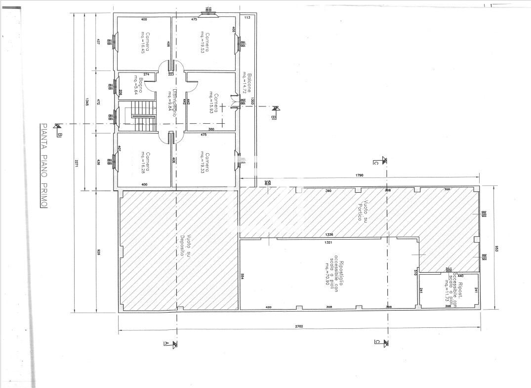
In posizione riservata e strategica, proponiamo una villa completamente indipendente, disposta su due livelli, inserita in un lotto esclusivo di circa 4.000 mq.

La proprietà si distingue per metrature importanti e per la presenza di numerosi ambienti accessori e locali adibiti a servizi, elementi oggi sempre più rari sul mercato.

L’immobile è interamente da ristrutturare, condizione che consente massima libertà progettuale e una valorizzazione totale degli spazi, adattandoli a esigenze abitative moderne o a un progetto di sviluppo immobiliare.

Si tratta di una soluzione non ordinaria, pensata per clienti consapevoli alla ricerca di un immobile con forte potenziale di trasformazione e rivalutazione. Le generose dimensioni, unite alla flessibilità degli spazi e all’ampio terreno, rendono questa proprietà un’opportunità concreta per investitori, imprese edili o famiglie che desiderano realizzare un progetto abitativo su misura.

• Lotto privato di circa 4.000 mq

• Totale indipendenza

• Ampia superficie abitativa e accessoria

• Possibilità di ricavare fino a 3 unità immobiliari

• Ideale per residenza di prestigio, plurifamiliare, investimento o attività ricettiva

Maggiori informazioni, documentazione e visite:

ANDREA 3335344442

O INVIA UNA MAIL ALL'INDIRIZZO a.calabro@romagnacase.it

Anno di costruzione: 1970
Stato immobile: Da ristrutturare
Scheda dati dettagliata
Codice immobile
IM-15033
Genere
Residenziale
Contratto
vendita
Tipologia
Villa o Villetta
Certificazione energetica
Senza certificazione energetica, Legge 90/2013
Città
Gatteo
Cap
47043
Provincia
Forlì-Cesena
Via/Viale/piazza
STAGGI
Numero civico
7
Zona
Gatteo Sant'Angelo
Piano
1
Superficie
ca. 404 m²
Locali
10
Camere da letto
7
Bagni
1
Garage
No
Balcone
No
Terrazza
No
Prezzo
349.000,00 €
Permuta il tuo immobile
Come funziona la permuta immobiliare?
Agente immobiliare Andrea Calabrò
Andrea Calabrò

ROMAGNA CASE _ GAMBETTOLA Via Alcide de Gasperi 121 47035 Gambettola
Richiedi informazioni