Cerca l'immobile giusto per te

Inserisci rif. immobile

Oppure scegli il tipo di contratto

Tipo di proprietà
Provincia
Superficie
Numero di locali
Fascia di prezzo
Agenzia
Caratteristiche
1141 Immobili trovati

BILOCALI AL PIANO TERRA A 100M DAL MARE


Ravenna - Viale Romagna 364
Render esterno
zona giorno
camera
zona giorno
camera
esterno
Progetto
Descrizione dell'immobile

LIDO DI SAVIO

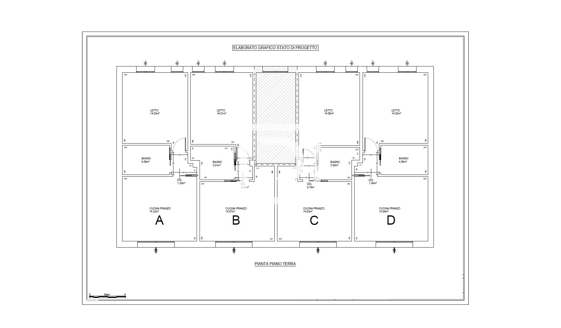
Romagna Case propone a soli 100 metri dal mare quattro appartamenti bilocali completamente ristrutturati con corte privata, ideali sia come casa vacanze che come investimento ad alta redditività.

Gli appartamenti, pressoché identici, sono composti da:

• Luminosa zona giorno con angolo cottura;

• Disimpegno;

• Bagno;

• Camera da letto matrimoniale.

All’esterno, ogni unità è valorizzata da una corte privata di circa 16 mq, perfetta per pranzi all’aperto, relax o per vivere al meglio l’estate.

Una delle unità dispone inoltre di 2 posti auto di pertinenza.

Gli immobili sono in fase di completa ristrutturazione e verranno consegnati a fine maggio 2026, con spazi rinnovati e finiture moderne, pronti da vivere o da mettere a reddito.

Posizione invidiabile, mare raggiungibile a piedi, comfort e qualità: una soluzione che unisce piacere e investimento.

Le immagini presenti nell’annuncio includono render realizzati con intelligenza artificiale a scopo illustrativo.

Per informazioni contattare:

Samantha

3391903845

Anno di costruzione: 1972
Stato immobile: Ottimo / Ristrutturato
Scheda dati dettagliata
Codice immobile
IM-15454
Genere
Residenziale
Contratto
vendita
Tipologia
Appartamento
Città
Ravenna
Cap
48100
Provincia
Ravenna
Via/Viale/piazza
Viale Romagna
Numero civico
364
Zona
Lido di Savio - Lido di Classe
Superficie
ca. 42 m²
Camere da letto
1
Bagni
1
Garage
No
Balcone
No
Terrazza
No
Planimetria
PLN pulita
Permuta il tuo immobile
Come funziona la permuta immobiliare?
Agente immobiliare Samantha Magrini
Samantha Magrini

viale alfredo oriani 14 48015 Cervia
Richiedi informazioni