Cerca l'immobile giusto per te

Inserisci rif. immobile

Oppure scegli il tipo di contratto

Tipo di proprietà
Provincia
Superficie
Numero di locali
Fascia di prezzo
Agenzia
Caratteristiche
1071 Immobili trovati

CAPANNONE COMMERCIALE/ARTIGIANALE 400 mq – VENDITA E LOCAZIONE – CENTRO URBANO


335.000,00 € IM-15466

Cesena - Via Edgardo Macrelli 83

02092026_110225
02102026_112034
02102026_112052
02102026_112112
02102026_114449
Garage (1)
Garage
Other (4)
Other
02092026_110234
PLN
3D tour
Descrizione dell'immobile

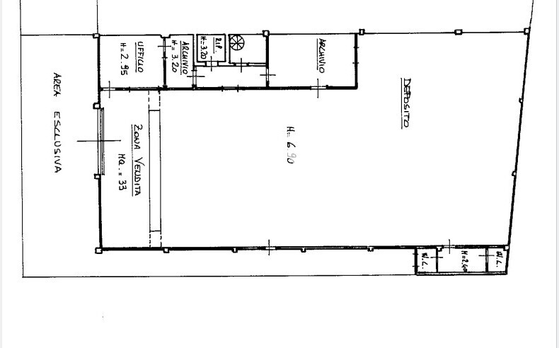
Proponiamo in vendita e in locazione capannone monopiano di circa 400 mq, idoneo ad attività artigianali e di commercio all’ingrosso, situato in posizione adiacente al centro storico ma al contempo comodamente collegato ai principali assi autostradali e alla E45.

L’immobile presenta struttura in muratura con pilastri perimetrali, priva di ingombri interni, garantendo massima flessibilità distributiva e piena fruibilità degli spazi per stoccaggio merci o rimessaggio mezzi aziendali.

Caratteristiche tecniche principali:

• Superficie: 400 mq

• Altezza interna: 6,50 m

• Assenza di pilastri interni

• Impianto elettrico 380V trifase

• Pavimentazione in cemento industriale con finitura in resina

• Controsoffitto in cartongesso

• Area uffici in muratura e cartongesso, personalizzabile

• Portone a raso dimensioni 4 m (H) x 5 m (L), idoneo all’accesso di furgoni

• Copertura in cemento con guaina bituminosa e vernice all’alluminio, riposata circa 5 anni fa

Spazi esterni:

• Pensilina frontale in muratura profonda circa 4 m, ideale per carico/scarico coperto

• 4 posti auto di proprietà

• Layout e posizione che consentono occasionali operazioni di carico/scarico anche con bilico

Destinazioni ideali:

• Laboratori artigianali

• Attività commerciali all’ingrosso

• Attività di distribuzione urbana

Soluzione tecnicamente efficiente, ben mantenuta e immediatamente utilizzabile, particolarmente indicata per operatori che necessitano di spazi funzionali, accessibilità e visibilità.

- ADIACENTE AL CENTRO URBANO

- ACCESSO FURGONI/BILICI

- AREA UFFICI FLESSIBILE E PERSONALIZZABILE

CHIAMA SUBITO

Per info e visite il numero 0547. 632205

oppure RICCARDO 348.3226956

Anno di costruzione:
Scheda dati dettagliata
Codice immobile
IM-15466
Genere
Commerciale
Contratto
vendita
Tipologia
Capannoni/Magazzini/Produzione
Città
Cesena
Cap
47042
Provincia
Forlì-Cesena
Via/Viale/piazza
Via Edgardo Macrelli
Numero civico
83
Zona
Centro Urbano
Garage
No
Balcone
No
Terrazza
No
Prezzo
335.000,00 €
Permuta il tuo immobile
Come funziona la permuta immobiliare?
Richiedi informazioni