Cerca l'immobile giusto per te

Inserisci rif. immobile

Oppure scegli il tipo di contratto

Tipo di proprietà
Provincia
Superficie
Numero di locali
Fascia di prezzo
Agenzia
Caratteristiche
1139 Immobili trovati

NEGOZIO IN AFFITTO - MILANO MARITTIMA


5.000,00 €/mese IM-15613

Cervia - Matteoti 43

1 bagno
piano terra
interno
esterno
esterno
interno
interno
Descrizione dell'immobile

PRESTIGIOSO NEGOZIO IN AFFITTO NEL CUORE DI MILANO MARITTIMA

Proponiamo in affitto un locale commerciale unico situato nella posizione più ambita di Milano Marittima. Incastonato tra le iconiche rotonde del centro, l’immobile gode di una visibilità straordinaria grazie a un altissimo flusso pedonale costante durante tutto l’anno e intensificato dalla stagione d'élite.

Superficie: circa 100 mq distribuiti in un ambiente spazioso e versatile.

3 ampie vetrine ad angolo/fronte strada che garantiscono una luminosità naturale eccezionale e una superficie espositiva d’impatto.

Layout ottimale per showroom o boutique, completo di comodo ripostiglio/magazzino sul retro e bagno interno a norma.

Perché sceglierlo?

È la soluzione ideale per chi cerca una vetrina di rappresentanza nella "Città Giardino", capace di attrarre una clientela nazionale e internazionale di alto profilo. Lo stato dell'immobile è eccellente, pronto per essere personalizzato secondo l'identità del proprio brand.

Anno di costruzione:
Stato immobile: Ottimo / Ristrutturato
Scheda dati dettagliata
Codice immobile
IM-15613
Genere
Commerciale
Contratto
affitto
Tipologia
Negozio o Locale commerciale
Città
Cervia
Cap
48015
Provincia
Ravenna
Via/Viale/piazza
Matteoti
Numero civico
43
Zona
Milano Marittima
Piano
0
Bagni
1
Garage
No
Balcone
No
Terrazza
No
Prezzo
5.000,00 €/mese
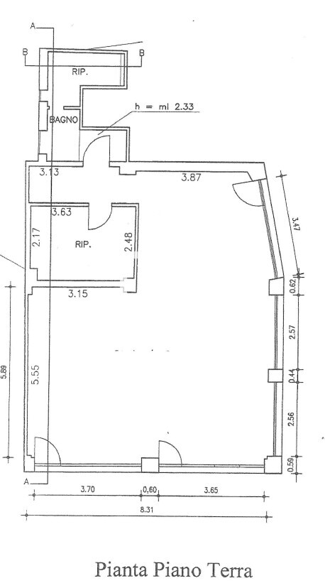
Planimetria
Planimetria
Permuta il tuo immobile
Come funziona la permuta immobiliare?
Agente immobiliare Josefa Lettich
Josefa Lettich

viale oriani 14 48015 Cervia
Richiedi informazioni