Cerca l'immobile giusto per te

Inserisci rif. immobile

Oppure scegli il tipo di contratto

Tipo di proprietà
Provincia
Superficie
Numero di locali
Fascia di prezzo
Agenzia
Caratteristiche
1143 Immobili trovati

RISTO PIZZERIA - VERANDA E CANNA FUMARIA – CESENA


3.000,00 €/mese IM-15786

Cesena - Via Chiesa Di Sant'Egidio 15

Pizzeria-Einrichtung-1024x551
7-idee-per-arredare-una-pizzeria--2--1
locale-anche-molto-pulito
Moderne-Pizzeria-Einrichtung
Rione-pizzeria-ristorante-castel-gandolfo-02
Ricrea la planimetri - Clean
Descrizione dell'immobile

All’interno di un quartiere residenziale ad alta densità abitativa di Cesena, disponibili in locazione circa 200 mq commerciali, storicamente destinato ad attività di ristorazione e pizzeria.

L’immobile si sviluppa interamente al piano terra, garantendo accesso immediato, facilità di carico/scarico e fruibilità per la clientela.

Il locale è stato per molti anni sede di un noto franchising di pizzerie, a conferma della validità commerciale della posizione e la forte capacità attrattiva della zona.

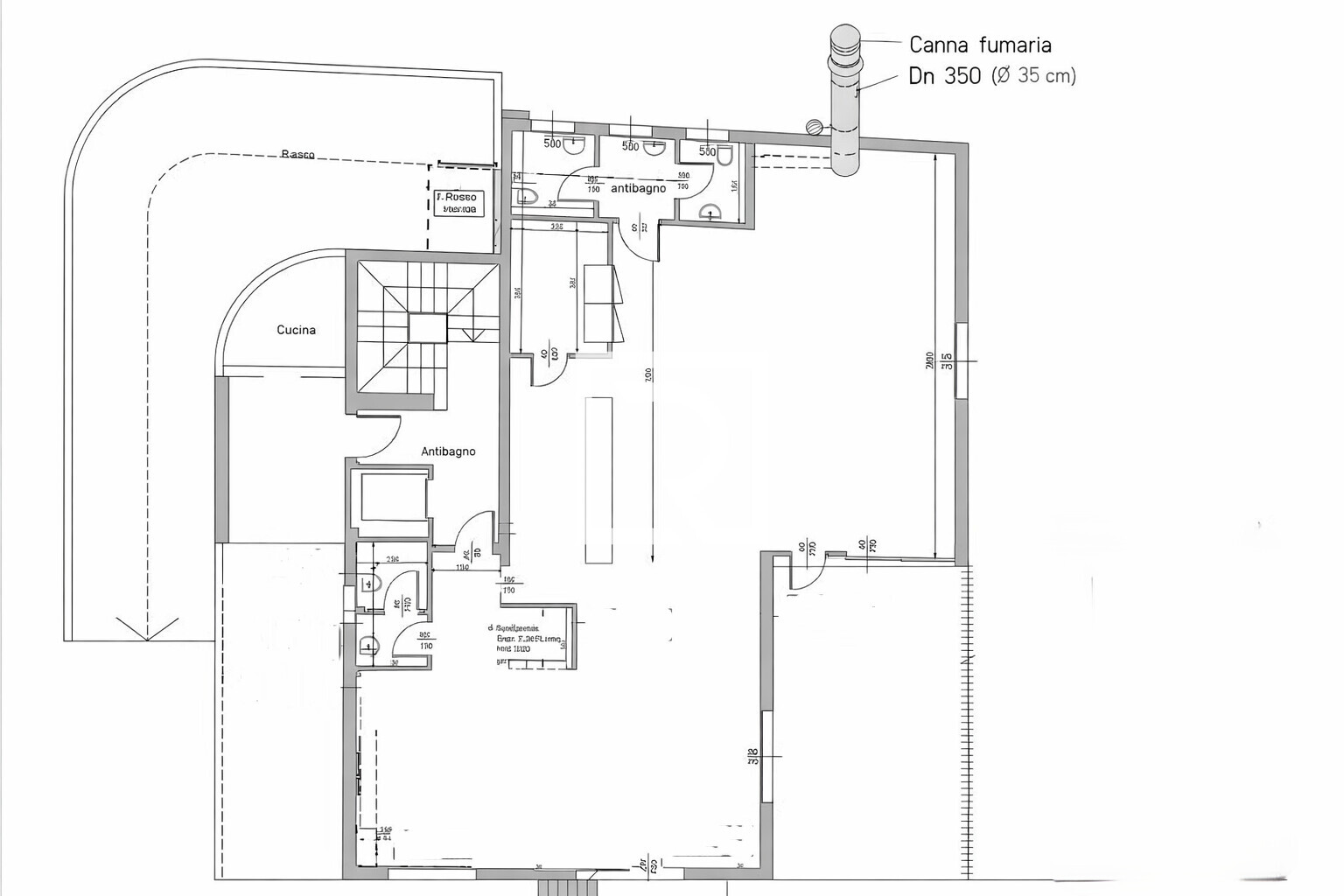
Dal punto di vista tecnico l’immobile si caratterizza per:

• canna fumaria con diametro 350 mm, dimensione idonea per impianti di cucina professionale e forni per pizzeria;

• forno pizza già presente;

• ampi spazi interni facilmente organizzabili per sala, cucina e servizi.

La struttura è inoltre valorizzata da una ampia veranda coperta e riscaldata, utilizzabile tutto l’anno:

• chiusa e riscaldata durante la stagione invernale,

• completamente apribile nella stagione estiva, creando un ambiente conviviale e molto apprezzato dalla clientela.

L’immobile è circondato da spazi esterni e verde, elemento raro per locali di ristorazione in contesti urbani e particolarmente interessante per sviluppare dehors, area aperitivi o zona eventi.

Grazie alla forte presenza residenziale e alla storica destinazione a pizzeria/ristorazione, il locale rappresenta una base ideale per avviare o rilanciare un progetto ristorativo senza le criticità tipiche delle nuove aperture.

Il contratto riguarda la locazione dei soli muri, offrendo all’imprenditore la possibilità di personalizzare completamente concept, layout e attrezzature.

Punti di forza

• Location consolidata per la ristorazione, già sede di un franchising di pizzerie affermato

• Canna fumaria Ø 350 mm e forno pizza già presente, base tecnica ideale per cucina professionale

• Veranda riscaldata e grandi spazi esterni, perfetti per aumentare i coperti e la stagionalità del locale

Per info e visite il numero 0547.632205

oppure DOMENICO 344.2730014

Anno di costruzione:
Scheda dati dettagliata
Codice immobile
IM-15786
Genere
Commerciale
Contratto
affitto
Tipologia
Negozio o Locale commerciale
Città
Cesena
Cap
47521
Provincia
Forlì-Cesena
Via/Viale/piazza
Via Chiesa Di Sant'Egidio
Numero civico
15
Zona
Sant'Egidio - Vigne
Garage
No
Balcone
No
Terrazza
No
Prezzo
3.000,00 €/mese
Permuta il tuo immobile
Come funziona la permuta immobiliare?
Richiedi informazioni