Cerca l'immobile giusto per te

Inserisci rif. immobile

Oppure scegli il tipo di contratto

Tipo di proprietà
Provincia
Superficie
Numero di locali
Fascia di prezzo
Agenzia
Caratteristiche
1144 Immobili trovati

AMPIO TRILOCALE AL PIANO PRIMO CON BALCONI 2 CANTINE E POSTO AUTO A FRATTA TERME BERTINORO INGRESSO INDIPENDENTE


199.000,00 € IM-15842

Bertinoro - Alessandro Manzoni 57

3 locali
ca. 94 m²
1 bagno
1° piano
WhatsApp Image 2026-03-12 at 12.43.21 (1)
WhatsApp Image 2026-03-12 at 12.43.21
pln con mq
pln cantine
fotografie in arrivo
Descrizione dell'immobile

FRATTA TERME - BERTINORO

AMPIO TRILOCALE AL PIANO PRIMO CON BALCONI 2 CANTINE E POSTO AUTO A FRATTA TERME BERTINORO INGRESSO INDIPENDENTE

In posizione comoda , su quartiere residenziale con strada senza uscita privo di traffico , a due passi dalla piazza .

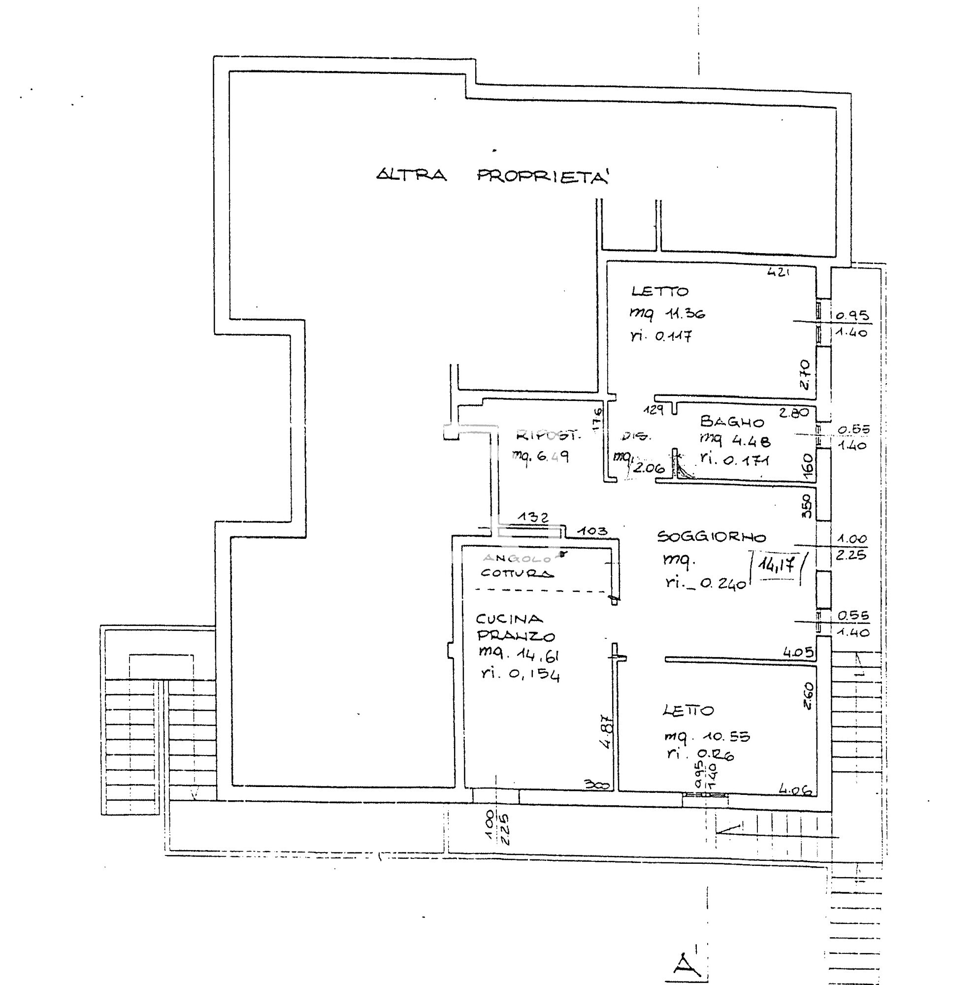
Proponiamo in vendita appartamento al piano primo con ingresso indipendente tramite balcone ad angolo .

Ingresso su cucina abitabile , salotto separato , ripostiglio da 6,5 mq , bagno finestrato con doccia .

Due camere da letto entrambe con affaccio sul balcone .

Al piano semi interrato del condominio troviamo il posto auto coperto da 10 mq e due cantine.

Le spese condominiali sono circa 60,00 € mensili .

Chiamami per fissare una visita 3358443446 Luca

Anno di costruzione: 1984
Stato immobile: Buono / Abitabile
Scheda dati dettagliata
Codice immobile
IM-15842
Genere
Residenziale
Contratto
vendita
Tipologia
Appartamento
Certificazione energetica
Attestato di prestazione energetica (APE), A3
Città
Bertinoro
Cap
47032
Provincia
Forlì-Cesena
Via/Viale/piazza
Alessandro Manzoni
Numero civico
57
Zona
Fratta Terme
Piano
1
Superficie
ca. 94 m²
Locali
3
Camere da letto
2
Bagni
1
Cucina
Cucina abitabile
Garage
No
Balcone
Si
Terrazza
No
Prezzo
199.000,00 €
Permuta il tuo immobile
Come funziona la permuta immobiliare?
Agente immobiliare Luca Pezzi
Luca Pezzi

ROMAGNA CASE _ FORLIMPOPOLI Via Giacomo Matteotti 16 47034 Forlimpopoli
Richiedi informazioni