Cerca l'immobile giusto per te

Inserisci rif. immobile

Oppure scegli il tipo di contratto

Tipo di proprietà
Provincia
Superficie
Numero di locali
Fascia di prezzo
Agenzia
Caratteristiche
1145 Immobili trovati

VILLETTA DI PREGIO A MILANO MARITTIMA


1.800.000,00 € IM-5104

Cervia - II traversa 1

4 locali
ca. 170 m²
3 bagni
piano terra
esterno
esterno
camera da letto
bagno
ChatGPT Image 19 feb 2026, 12_02_15
cucina
cucina
soggiorno
soggiorno
terrazzo
terrazzo
bagno
camera da letto
bagno
camera da letto
camera da letto
bagno
garage
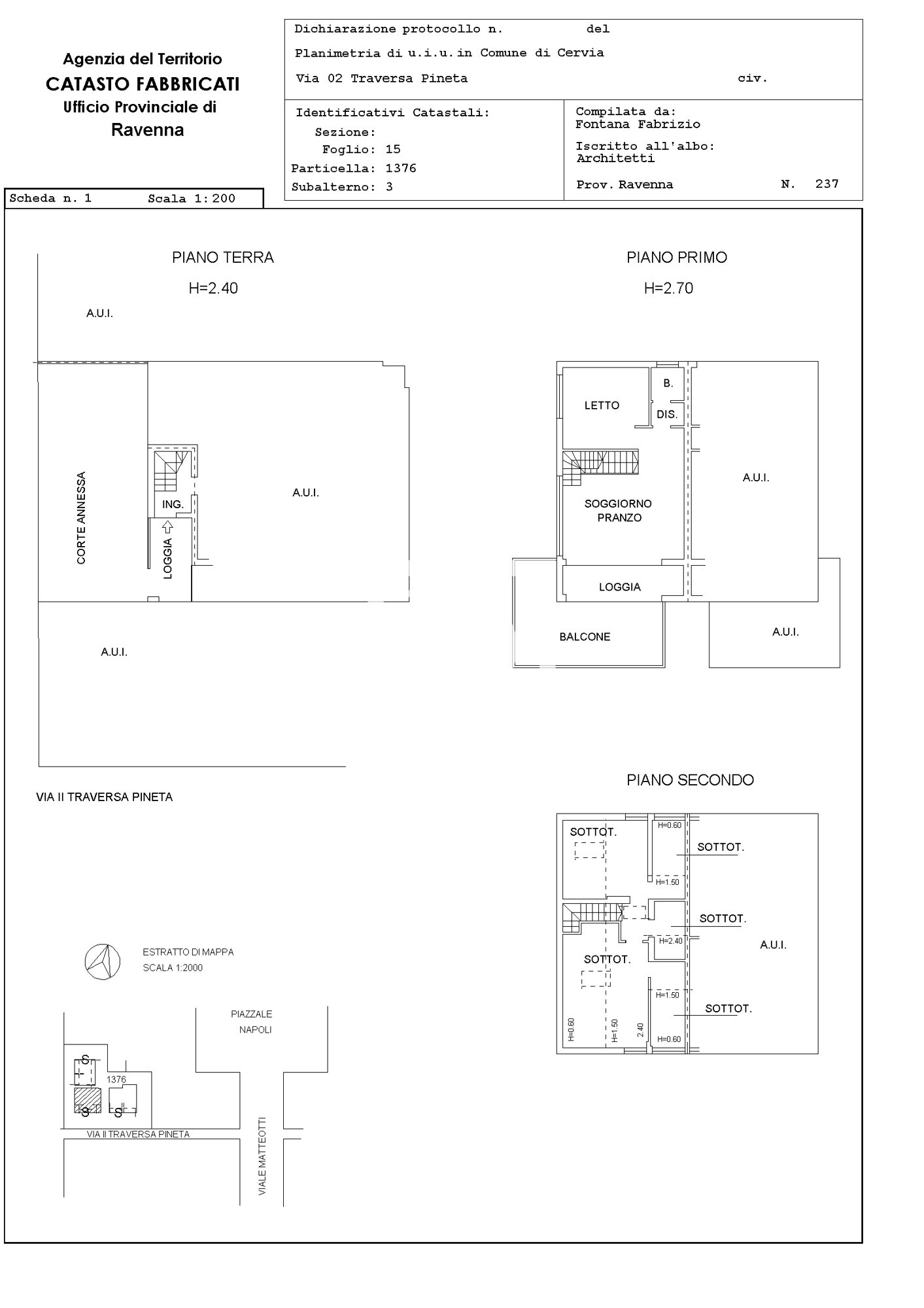
Descrizione dell'immobile

VILLA DI DESIGN NEL CUORE DI MILANO MARITTIMA

A pochi passi dal litorale, nel cuore pulsante del glamour della Riviera, proponiamo un'esclusiva villa di design sviluppata su tre livelli, dove ogni piano è pensato per una funzione specifica: accoglienza, socialità e privacy.

Piano terra:

L'ingresso si apre su una corte privata che garantisce un accesso fluido e riservato.

Una spaziosa camera matrimoniale con bagno privato, ideale per garantire la massima indipendenza agli ospiti o al personale di servizio.

Primo piano:

Salendo al primo livello, si entra nella zona dedicata alla convivialità, caratterizzata da finiture di pregio e un respiro internazionale.

Soggiorno luminoso e cucina abitabile separata, entrambi moderni e funzionali.

Bagno di servizio, elegante e discreto, a disposizione del piano.

Il terrazzo wellness: vero pezzo forte della casa. Un ampio terrazzo abitabile che ospita una vasca Jacuzzi esclusiva, perfetta per aperitivi al tramonto e relax totale all'aria aperta.

Secondo piano:

L’ultimo livello è dedicato al riposo assoluto, lontano dai rumori della zona giorno.

Due ampie camere matrimoniali.

Bagno master: Un terzo servizio completo, con materiali di design contemporaneo e finiture top di gamma.

Posizione strategica: vicinissima al mare e alle boutique.

Tecnologia: impianti di ultima generazione e domotica integrata.

- 3 CAMERE DA LETTO MATRIMONIALI

- 3 BAGNI

- GARAGE PRIVATO

- 2 POSTI AUTO

- CORTILE/GIARDINO PRIVATO

- TERRAZZO CON JACUZZI

- FINITURE DI DESIGN

- SISTEMA DI DOMOTICA INTEGRATA

Questa villa rappresenta un’opportunità unica nel panorama immobiliare di Milano Marittima. Se desiderate ricevere maggiori informazioni o organizzare una visita privata per toccare con mano la qualità delle finiture e l'esclusività degli spazi, non esitate a contattarci:

Josefa - 3283798000 - j.lettich@romagnacase.it

Anno di costruzione:
Stato immobile: Ottimo / Ristrutturato
Scheda dati dettagliata
Codice immobile
IM-5104
Genere
Residenziale
Contratto
vendita
Tipologia
Villa o Villetta
Città
Cervia
Cap
48015
Provincia
Ravenna
Via/Viale/piazza
II traversa
Numero civico
1
Zona
Milano Marittima
Piano
0
Superficie
ca. 170 m²
Locali
4
Camere da letto
3
Bagni
3
Garage
Si
Balcone
No
Terrazza
Si
Prezzo
1.800.000,00 €
Planimetria
planimetria piano terra,primo e secondo8759
Permuta il tuo immobile
Come funziona la permuta immobiliare?
Agente immobiliare Josefa Lettich
Josefa Lettich

viale oriani 14 48015 Cervia
Richiedi informazioni