Cerca l'immobile giusto per te

Inserisci rif. immobile

Oppure scegli il tipo di contratto

Tipo di proprietà
Provincia
Superficie
Numero di locali
Fascia di prezzo
Agenzia
Caratteristiche
1145 Immobili trovati

LOCALE COMMERCIALE SUL MARE - CESENATICO


165.000,00 € IM-9386

Cesenatico - Via Bernini 26

2 bagni
Immagine WhatsApp 2025-07-02 ore 13.25.33_4c202d32
07022025_151850
Bedroom
Immagine WhatsApp 2025-07-02 ore 13.25.34_7a709b5c
Immagine WhatsApp 2025-07-02 ore 13.25.33_e5cc33da
Dollhouse-View
Ufficio A Due Passi Dal Mare - Floor 1
3D tour
Descrizione dell'immobile

CESENATICO-VALVERDE

NEGOZIO SUL MARE

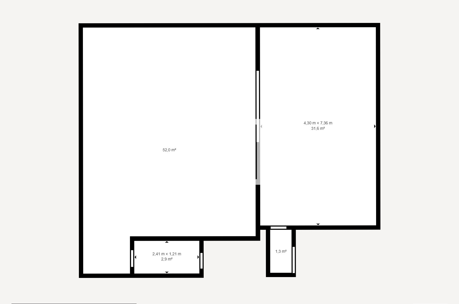
In vendita, nella rinomata zona di Valverde di Cesenatico, proponiamo un ampio locale commerciale, in buone condizioni, costruito nel 1960, situato al piano terra e a pochi metri dal mare.

Con un layout a doppie vetrine che si sviluppa parallelamente al fronte strada, è dotato di ampio spazio esterno e offre un'ottima visibilità al traffico pedonale che affolla la zona durante tutto l'anno.

La zona in cui si trova l'immobile è particolarmente attrattiva per la presenza di grandi hotel e numerosi appartamenti, che contribuiscono a una continua affluenza di turisti, rendendolo ideale per attività commerciali rivolte a un pubblico eterogeneo.

Questa proprietà rappresenta un'ottima opportunità per investitori o imprenditori del settore food, retail o altri settori che necessitano di visibilità e afflusso di clienti e sono alla ricerca di una location strategica a Cesenatico.

- OTTIMO INVESTIMENTO

- VICINO AL MARE

- ZONA STRATEGICA

CHIAMA SUBITO

Per info e visite il numero 0547. 632205

oppure DOMENICO 344.2730014

Anno di costruzione: 1960
Stato immobile: Buono / Abitabile
Scheda dati dettagliata
Codice immobile
IM-9386
Genere
Commerciale
Contratto
vendita
Tipologia
Negozio o Locale commerciale
Città
Cesenatico
Cap
47042
Provincia
Forlì-Cesena
Via/Viale/piazza
Via Bernini
Numero civico
26
Zona
Valverde
Bagni
2
Garage
No
Balcone
No
Terrazza
No
Prezzo
165.000,00 €
Permuta il tuo immobile
Come funziona la permuta immobiliare?
Richiedi informazioni