Cerca l'immobile giusto per te

Inserisci rif. immobile

Oppure scegli il tipo di contratto

Tipo di proprietà
Provincia
Superficie
Numero di locali
Fascia di prezzo
Agenzia
Caratteristiche
1172 Immobili trovati

CASA INDIPENDENTE IN VENDITA


260.000,00 € IM-15970

Cesenatico - Via Orsa Maggiore 31/A

2 locali
ca. 50 m²
1 bagno
ESTERNO PRIMA FOTO
8c6404ad-e2d9-4808-8feb-91b30840f371
73e8d7c9-e368-44b4-9ba3-1b72f735f191
REDNER DISIMPEGNO
RENDER SOGGIORNO
a2c64475-df05-4b12-a1af-a11619353506
RENDER CUCINA
RENDER BAGNO
RENDER CAMERA 1
01ef2826-f0ea-4815-90db-68352a5d31b5
CAMERA 3
CAMERA 4
PLANIMETRIA ATTUALE
PROGETTO REALIZZO
PROGETTO SOTTOTETTO
Descrizione dell'immobile

CASA INDIPENDENTE CON PROGETTO DI AMPLIAMENTO – A POCHI PASSI DAL MARE

Proponiamo in vendita una graziosa casa indipendente di circa 50 mq, situata all’interno di una corte comune, con posto auto.

L’immobile, accogliente e funzionale, è composto da:

- ingresso su disimpegno

- luminoso soggiorno con camino e stufa a pellet

- cucinotto

- bagno con doccia (senza piatto doccia)

- ampia camera matrimoniale

La proprietà viene venduta completamente arredata ed è subito abitabile, ideale per chi cerca una soluzione pronta all’uso.

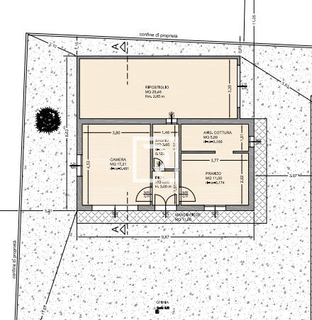
VALORE AGGIUNTO: È GIÀ DISPONIBILE UN PROGETTO APPROVATO PER AMPLIAMENTO, CHE PREVEDE:

- realizzazione di un piano superiore con zona notte

- ampliamento della cucina nell’attuale garage

- suddivisione delle aree esterne comuni, trasformandole in spazi privati con accesso tramite passo carrabile e cancello.

TALE PROGETTO VISIONABILE NELLE IMMAGINI PLANIMETRICHE.

Soluzione ideale sia come casa vacanze che come investimento, perfetta per chi desidera personalizzare l’immobile e realizzare una soluzione più indipendente, in un contesto residenziale tranquillo e a breve distanza dal mare.

Prezzo: €260.000 trattabili.

Elisa - telefono: +39 3495785427 oppure e-mail: e.zeri@romagnacase.it

Anno di costruzione:
Stato immobile: Buono / Abitabile
Scheda dati dettagliata
Codice immobile
IM-15970
Genere
Residenziale
Contratto
vendita
Tipologia
Appartamento
Città
Cesenatico
Cap
47042
Provincia
Forlì-Cesena
Via/Viale/piazza
Via Orsa Maggiore
Numero civico
31/A
Zona
Villamarina Monte
Superficie
ca. 50 m²
Locali
2
Camere da letto
1
Bagni
1
Cucina
Cucinotto
Garage
No
Balcone
No
Terrazza
No
Prezzo
260.000,00 €
Permuta il tuo immobile
Come funziona la permuta immobiliare?
Agente immobiliare Elisa Zeri
Elisa Zeri

viale alfredo oriani 14 48015 cervia
Richiedi informazioni