Cerca l'immobile giusto per te

Inserisci rif. immobile

Oppure scegli il tipo di contratto

Tipo di proprietà
Provincia
Superficie
Numero di locali
Fascia di prezzo
Agenzia
Caratteristiche
1228 Immobili trovati

APPARTAMENTO IN CENTRO A CERVIA


395.000,00 € IM-14183

Cervia - Via Luigi Mazzolani 7

4 locali
ca. 100 m²
1 bagno
piano terra
camera
ingresso
terrazzo
sala da pranzo
sala da pranzo
sala da pranzo
sala da pranzo
cucina
cucina
cucina
disimpegno
bagno
bagno
bagno
corridoio
salotto
salotto
salotto
salotto
camera
camera
camera
camera
camera
camera
camera
terrazzo
3D tour
Descrizione dell'immobile

CERVIA CENTRO

Romagna Case propone in vendita appartamento nel centro di Cervia all'interno del quadrilatero, nella piazzetta Carlo Pisacane.

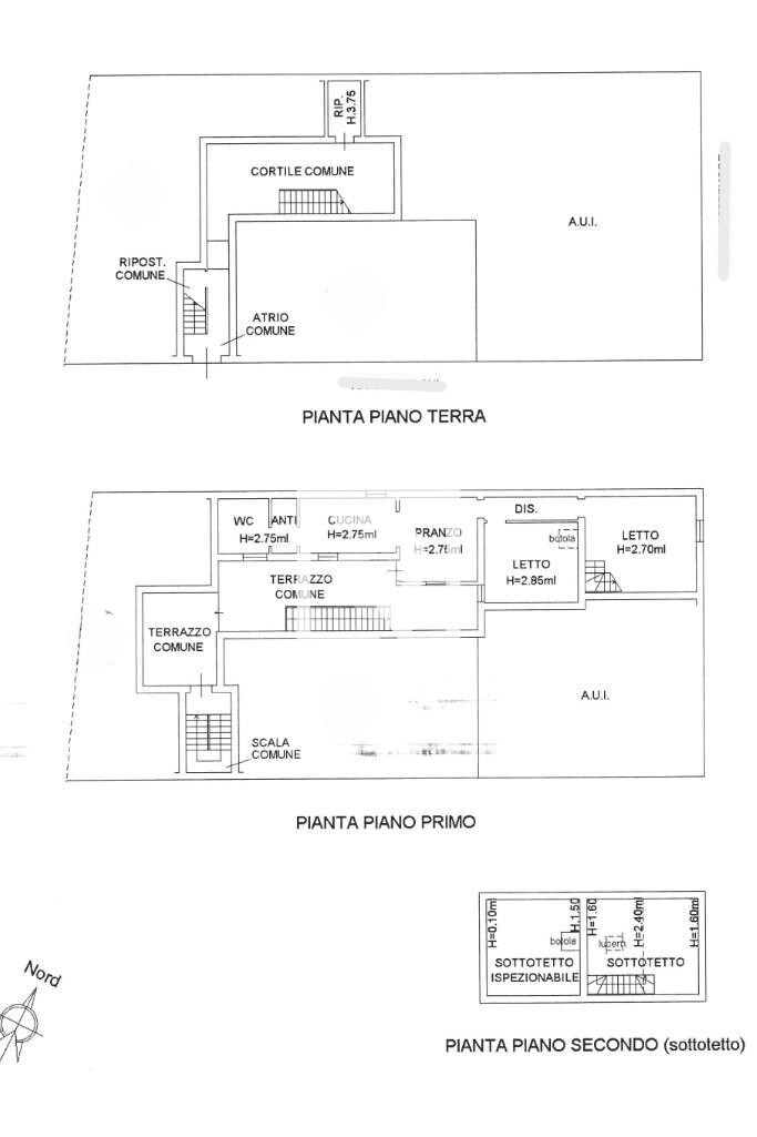
La soluzione, che si sviluppa su due livelli, è così composta: ingresso sulla sala da pranzo e cucina abitabile, salotto, bagno finestrato con doccia e un altro ambiente attualmente arredato come camera doppia.

Da qui si sale al piano superiore, dove troviamo la camera da letto matrimoniale.

Completa la soluzione una cantina di proprietà e un grande terrazzo ad uso comune.

Per informazioni Sara: 3662611752 - s.zoffoli@romagnacase.it

Anno di costruzione:
Stato immobile: Ottimo / Ristrutturato
Scheda dati dettagliata
Codice immobile
IM-14183
Genere
Residenziale
Contratto
vendita
Tipologia
Appartamento
Certificazione energetica
Attestato di prestazione energetica (APE),
Città
Cervia
Cap
48015
Provincia
Ravenna
Via/Viale/piazza
Via Luigi Mazzolani
Numero civico
7
Zona
Centro
Piano
0
Superficie
ca. 100 m²
Locali
4
Camere da letto
2
Bagni
1
Cucina
Cucina abitabile
Garage
No
Balcone
No
Terrazza
Si
Prezzo
395.000,00 €
Planimetria
PLANIMETRIA
Permuta il tuo immobile
Come funziona la permuta immobiliare?
Agente immobiliare Sara Zoffoli
Sara Zoffoli

ROMAGNA CASE _ CERVIA MI.MA. Viale Oriani 14 48015 Cervia
Richiedi informazioni