Cerca l'immobile giusto per te

Inserisci rif. immobile

Oppure scegli il tipo di contratto

Tipo di proprietà
Provincia
Superficie
Numero di locali
Fascia di prezzo
Agenzia
Caratteristiche
1207 Immobili trovati

NUOVA COSTRUZIONE - MARTORANO - CLASSE A4


Cesena - VIA RAVENNATE 2748
3-copia-1170x785
xxl (1)
xxl (2)
xxl (3)
xxl (4)
xxl (5)
xxl (6)
xxl
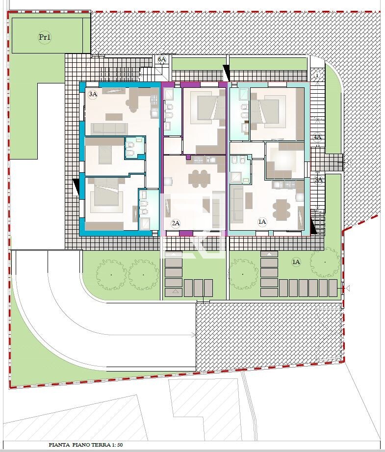
P.TERRA
P.PRIMO
P.SECONDO
P.INT
Descrizione dell'immobile

CESENA- MARTORANO

La Tua Nuova Casa in Classe A4 – Tecnologia e Design

Cerchi una casa che unisca efficienza energetica, ampi spazi e massima personalizzazione? RomagnaCase - Torre del Moro è lieta di presentare in esclusiva un nuovo complesso residenziale a Martorano, pensato per chi non scende a compromessi tra comfort moderno e sostenibilità.

Caratteristiche Principali

Queste villette di nuova costruzione rappresentano l'eccellenza dell'edilizia contemporanea:

• Massimo Risparmio: Certificazione in Classe A4 per consumi minimi.

• Tecnologia Green: Impianto fotovoltaico, pannelli solari e riscaldamento a pavimento con pompa di calore.

• Comfort Totale: Infissi in PVC a doppio vetro termo-acustico e impianto di climatizzazione già incluso.

• Su Misura: Ampia scelta di materiali di pregio con possibilità di personalizzare le finiture interne.

Posizione Strategica

Situate a Martorano, le villette godono di una posizione perfetta: immerse nella tranquillità ma a pochi minuti da tutti i principali servizi e dal centro città.

La tua nuova casa ti aspetta. Prenota oggi una consulenza in ufficio!

Agenzia Riferimento: RomagnaCase – Filiale Torre del Moro

Via Carlo Cattaneo, 360 - CESENA - 0547 33 37 01 - cesena2@romagnacase.it

Anno di costruzione: 2026
Stato immobile: Nuovo / In costruzione
Scheda dati dettagliata
Codice immobile
IM-15433
Genere
Residenziale
Contratto
vendita
Tipologia
Nuova costruzione
Certificazione energetica
Attestato di prestazione energetica (APE), A4
Città
Cesena
Cap
47023
Provincia
Forlì-Cesena
Via/Viale/piazza
VIA RAVENNATE
Numero civico
2748
Zona
Martorano - Ronta
Piano
0
Superficie
ca. 104 m²
Garage
No
Balcone
No
Terrazza
No
Permuta il tuo immobile
Come funziona la permuta immobiliare?
Agente immobiliare Andrea Fesani
Andrea Fesani

ROMAGNA CASE _ CESENA TORRE DEL MORO Via Carlo Cattaneo, 360 47521 Cesena
Richiedi informazioni