Cerca l'immobile giusto per te

Inserisci rif. immobile

Oppure scegli il tipo di contratto

Tipo di proprietà
Provincia
Superficie
Numero di locali
Fascia di prezzo
Agenzia
Caratteristiche
1187 Immobili trovati

NUOVA COSTRUZIONE - MARTORANO - CLASSE A4


312.000,00 IM-15433_2

Cesena - VIA RAVENNATE 2748

ca. 130 m²
piano terra
3-copia-1170x785
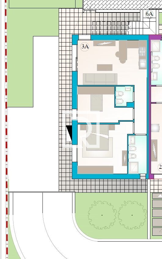
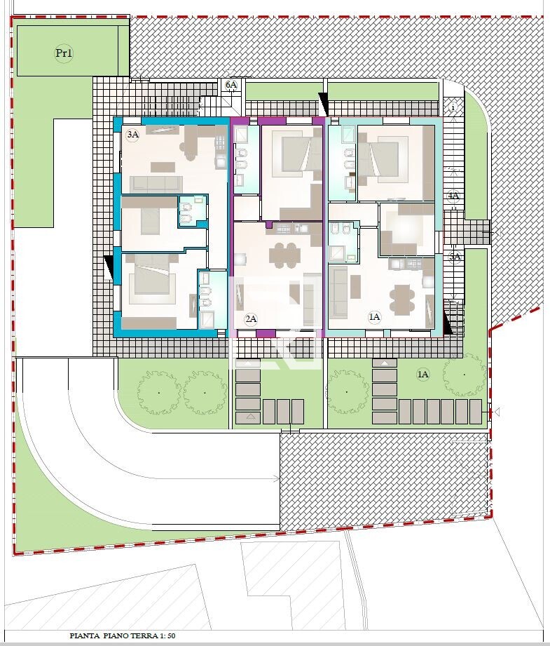
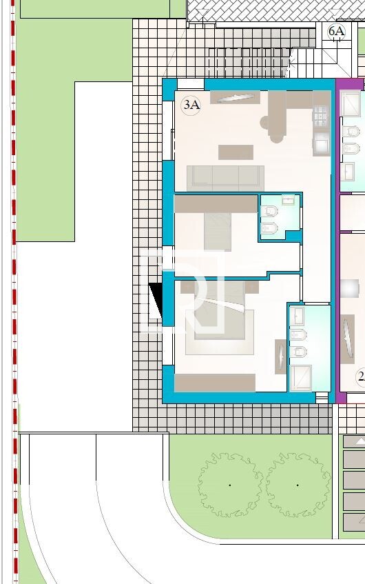
P.TERRA 3A
xxl (1)
xxl (2)
xxl (3)
xxl (4)
xxl (5)
xxl (6)
xxl
P.TERRA
P.PRIMO
P.SECONDO
P.INT
Descrizione dell'immobile

CESENA- MARTORANO

Il Tuo Nuovo Appartamento in Classe A4 – Indipendenza e Avanguardia

Sei alla ricerca di una soluzione moderna, dai costi di gestione quasi nulli e con la massima privacy? RomagnaCase Torre del Moro propone in esclusiva appartamenti di nuova costruzione a Martorano, progettati per offrirti il massimo comfort abitativo e tecnologico.

Eccellenza e Tecnologia

Queste abitazioni rappresentano il futuro dell'edilizia:

• Efficienza Massima: Certificazione in Classe A4 per un consumo energetico vicino allo zero.

• Indipendenza Totale: Ogni appartamento è dotato di ingresso indipendente e impianti autonomi.

• Comfort Acustico: Tecnologie di insonorizzazione all’avanguardia per il massimo del silenzio.

• Anima Green: Impianto fotovoltaico privato e finiture di pregio personalizzabili secondo il tuo stile.

La Tua Casa nel Dettaglio (Piano Terra)

L’appartamento è un accogliente trilocale avanzato situato interamente al piano terra:

• Zona Giorno: Luminoso open-space con soggiorno e angolo cottura.

• Zona Notte: Disimpegno, una camera matrimoniale, una camera singola (o studio) e un bagno moderno.

• Spazi Esterni e Accessori: Goditi il tuo giardino privato, perfetto per relax all'aperto o per i tuoi animali domestici. Completano la proprietà un garage al piano interrato e un posto auto riservato.

Perché sceglierlo?

Vivere a Martorano significa scegliere la tranquillità senza rinunciare alla comodità dei servizi, in una casa costruita con materiali di altissima qualità e su misura per te.

La tua nuova casa ti aspetta. Prenota oggi una consulenza in ufficio!

Agenzia Riferimento: RomagnaCase – Filiale Torre del Moro

Via Carlo Cattaneo, 360 - CESENA - 0547 33 37 01 - cesena2@romagnacase.it

Anno di costruzione: 2026
Stato immobile: Nuovo / In costruzione
Scheda dati dettagliata
Codice immobile
IM-15433_2
Genere
Residenziale
Contratto
vendita
Tipologia
Appartamento
Certificazione energetica
Attestato di prestazione energetica (APE),
Città
Cesena
Cap
47023
Provincia
Forlì-Cesena
Via/Viale/piazza
VIA RAVENNATE
Numero civico
2748
Zona
Martorano - Ronta
Piano
0
Superficie
ca. 130 m²
Garage
No
Balcone
No
Terrazza
No
Prezzo
312.000,00
Planimetria
P.TERRA 3A
Permuta il tuo immobile
Come funziona la permuta immobiliare?
Agente immobiliare Andrea Fesani
Andrea Fesani

ROMAGNA CASE _ CESENA TORRE DEL MORO Via Carlo Cattaneo, 360 47521 Cesena
Richiedi informazioni