Cerca l'immobile giusto per te

Inserisci rif. immobile

Oppure scegli il tipo di contratto

Tipo di proprietà
Provincia
Superficie
Numero di locali
Fascia di prezzo
Agenzia
Caratteristiche
1132 Immobili trovati

VILLETTA DI NUOVA COSTRUZIONE CON GIARDINO E GARAGE


555.000,00 IM-13524_2

Cesena - VIA MATILDE SERAO snc

4 locali
ca. 189 m²
4 bagni
dettaglio facciata
vista dall'alto laterale con accesso garage
render giardini
lato altra villetta di testa render giardino
dettaglio giardino villetta di testa
lato altra villetta di testa
lato villetta di testa
render grafico giardini
facciata generale
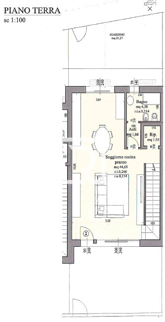
villetta 2 pt
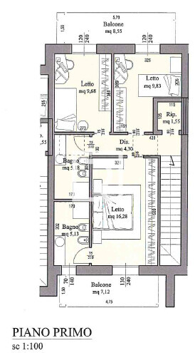
villetta 2 p1
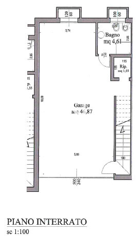
villetta 2 p-1
Descrizione dell'immobile

CESENA - CENTRO URBANO

Villetta di nuova costruzione e ad alta efficienza energetica in prossimità del centro storico!

Tutto ciò che ti serve: ampi spazi, giardino privato, garage, balconi, vicinanza a tutti i servizi e al centro della città. Inoltre, possibilità di personalizzazioni.

L'abitazione è costruita con i più moderni materiali e tecniche, con ottimali isolamenti termico, acustico e impermeabilizzante.

Il tetto è in legno ventilato e il cappotto esterno ha uno spessore di 15 centimetri.

Sono presenti fotovoltaico da 4 KW, pompa di calore, riscaldamento a pavimento e ventilazione meccanica WMC, nonché aria condizionata, allarme, aspirazione centralizzata, porte blindate e predisposizione per l'eventuale montaggio di una piattaforma elevatrice.

La villetta è composta da tre camere da letto, quattro bagni, ampia zona giorno, due balconi, giardino di 21 mq e garage di 47, così distribuiti:

- zona giorno, bagno e ripostiglio al piano terra

- zona notte con tre camere, due bagni, un ripostiglio e due balconi al piano primo

- garage, bagno e ripostiglio al piano interrato

Anche il garage è dotato di riscaldamento a pavimento ed è collegato dall'interno al resto dell'abitazione.

- POSIZIONE STRATEGICA

- ALTA EFFICIENZA ENERGETICA

- SICUREZZA

- GIARDINO DI 21 MQ

- GARAGE DI 47 MQ

SI VALUTANO PERMUTE

Per ulteriori informazioni o per fissare una visita sul posto:

ALESSIO: 3883433926

ROMAGNA CASE: 0547632205

o mandaci una e-mail a a.cavallucci@romagnacase.it

Anno di costruzione: 2026
Stato immobile: Nuovo / In costruzione
Scheda dati dettagliata
Codice immobile
IM-13524_2
Genere
Residenziale
Contratto
vendita
Tipologia
Villa o Villetta
Città
Cesena
Cap
47521
Provincia
Forlì-Cesena
Via/Viale/piazza
VIA MATILDE SERAO
Numero civico
snc
Zona
Stadio - La Fiorita
Superficie
ca. 189 m²
Locali
4
Camere da letto
3
Bagni
4
Cucina
A vista
Garage
Si
Superficie balcone/terrazza
ca. 16 m²
Balcone
Si
Terrazza
No
Prezzo
555.000,00
Permuta il tuo immobile
Come funziona la permuta immobiliare?
Agente immobiliare Alessio Cavallucci
Alessio Cavallucci

ROMAGNA CASE _ CESENA SANT'EGIDIO Via Chiesa di S.Egidio, 15 47521 Cesena
Richiedi informazioni