VILLETTA DI NUOVA COSTRUZIONE CON GIARDINO E GARAGE












CESENA - CENTRO URBANO
Villetta di nuova costruzione e ad alta efficienza energetica in prossimità del centro storico!
Tutto ciò che ti serve: ampi spazi, giardino privato, garage, balconi, vicinanza a tutti i servizi e al centro della città. Inoltre, possibilità di personalizzazioni.
L'abitazione è costruita con i più moderni materiali e tecniche, con ottimali isolamenti termico, acustico e impermeabilizzante.
Il tetto è in legno ventilato e il cappotto esterno ha uno spessore di 15 centimetri.
Sono presenti fotovoltaico da 4 KW, pompa di calore, riscaldamento a pavimento e ventilazione meccanica WMC, nonché aria condizionata, allarme, aspirazione centralizzata, porte blindate e predisposizione per l'eventuale montaggio di una piattaforma elevatrice.
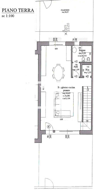
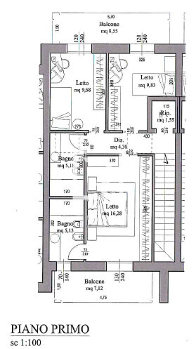
La villetta è composta da tre camere da letto, quattro bagni, ampia zona giorno, due balconi, giardino di 25 mq e garage di 47, così distribuiti:
- zona giorno, bagno e ripostiglio al piano terra
- zona notte con tre camere, due bagni, un ripostiglio e due balconi al piano primo
- garage, bagno e ripostiglio al piano interrato
Anche il garage è dotato di riscaldamento a pavimento ed è collegato dall'interno al resto dell'abitazione.
- POSIZIONE STRATEGICA
- ALTA EFFICIENZA ENERGETICA
- SICUREZZA
- GIARDINO DI 25 MQ
- GARAGE DI 47 MQ
SI VALUTANO PERMUTE
Per ulteriori informazioni o per fissare una visita sul posto:
ALESSIO: 3883433926
ROMAGNA CASE: 0547632205
o mandaci una e-mail a a.cavallucci@romagnacase.it